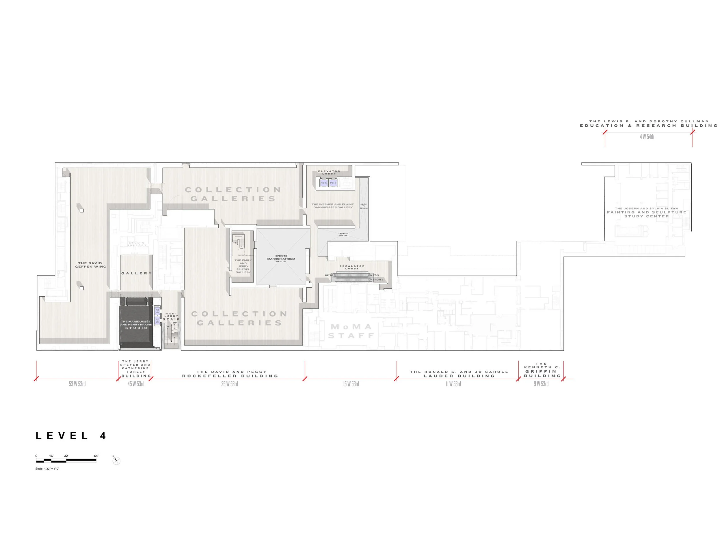
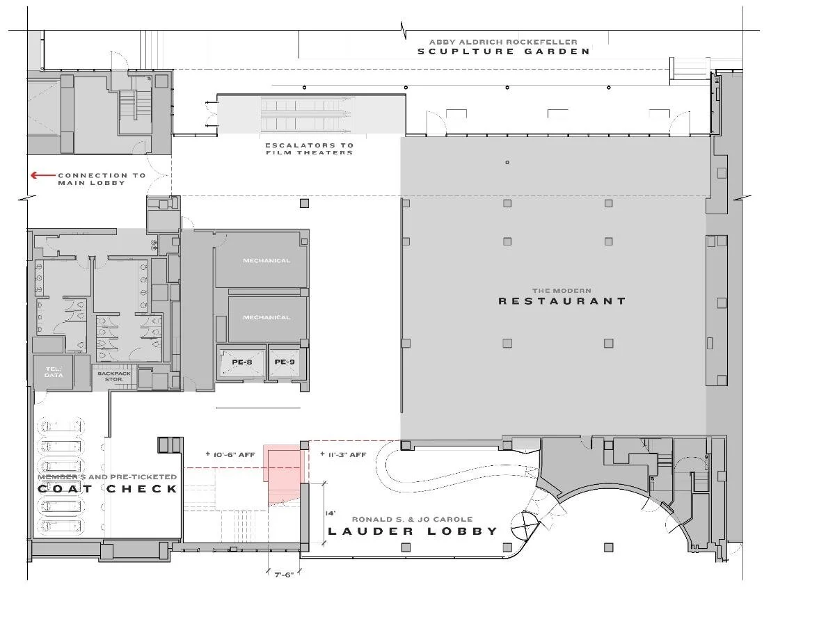
MoMA expansion

The project expanded total gallery space by 30%, improved public engagement at the ground floor, and flow throughout the Museum.

SKIN + CANOPY

Blade Stair + BAUHAUS STAIR

 

animation

Overview of all the interventions that comprise the Expansion project. They’re shown roughly in order of construction.

Next
Next

Columbia Business School